Kratak opis:
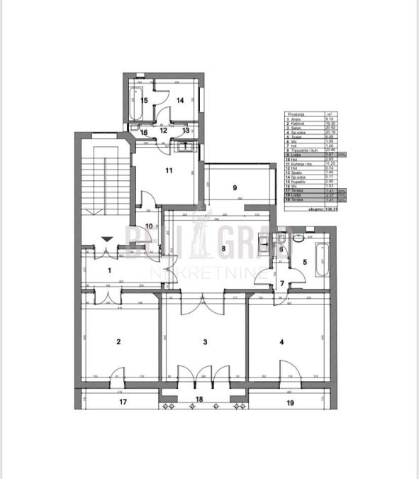
Terazijski plato, Lomina, 138m2, šestosoban, 3/3, EG, dva ulaza, dva kupatila, dva toaleta, četiri terase, uknjižen.
Šestosoban stan salonskog tipa, nalazi se na pešačkoj distanci od Terazija, Trga Republike i ulice Kneza Mihaila. Stan zauzima ceo treći sprat, ima unutrašnu visinu 3m. Dvostrano je orijentisan, sa puno prirodnog svetla. Velika staklena terasa ima fantastičan panoramski pogled na reku i veliki deo grada.
Po projektu, postoje dva ulaza, dva kupatila, dva toaleta i četiri terase. U stanu su formirane dve kuhinje, te prostor može da funkcioniše kao dve odvojene celine. U stanu su sačuvane tri kaljeve peći sa ugrađenim električnim grejačima.
Iznad celog stana se nalazi tavanski prostor, zahvaljujući čemu je moguće stan proširiti u postojećem gabaritu potkrovlja. Pošto stan zauzima ceo treći sprat, urađen je građevinski projekat i dozvola za izgradnju još jednog nivoa iste kvadrature, čime bi stan dobio formu fantastičnog dvoetažnog stana, ukupne površine oko 240m2.
U zgradi postoji mogućnost ugradnje panoramskog lifta. Zgrada se nalazi u mirnoj ulici bez saobraćaja, ima sopstveno dvorište i veliku baštu sa puno zelenila. Zgrada se odlikuje izuzetnom arhitektonskom vrednošću, pa predstavlja deo zaštićene ambijentalne celine.
Agencijska provizija 2%